




Nestled amongst the verdant hills of California, this Mediterranean-style house was a true gem, boasting a prime location that provided breathtaking vistas of the Pacific Ocean. The owner’s vision was to transform this property into an ultramodern haven, replete with large, sleek windows that would bathe the interiors in a flood of natural light.
However, the task at hand was not without its challenges, as the lower floors of the house were cloaked in shadows, creating a rather somber and gloomy atmosphere. To overcome this, we employed a clever technique of introducing additional openings and utilized a special white surface that expertly reflected natural light to even the deepest corners of the home.
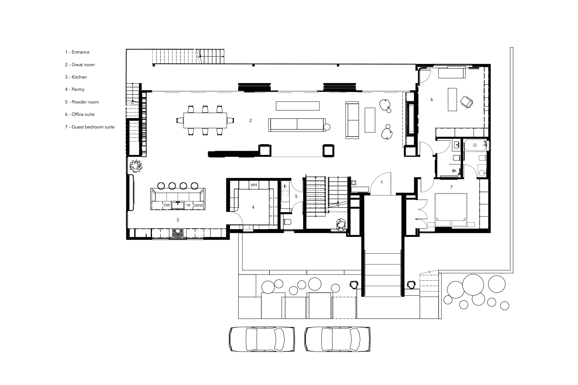
A true standout feature of this magnificent property is the opulent master suite, replete with separate his and her bathrooms and closets. The entrance to the house is via a futuristic bridge that leads directly to the second floor, where the great room and kitchen are situated.
This is a property that exudes understated elegance, seamlessly blending contemporary design with organic minimalism. The rich, textured wooden walls not only imbue the space with warmth and character but also serve to break down the rigid lines and narrow dimensions of the rooms, creating a cozy and inviting ambiance that feels like home. With an abundance of natural light flooding the interiors, this property is a true ode to modern living.


