



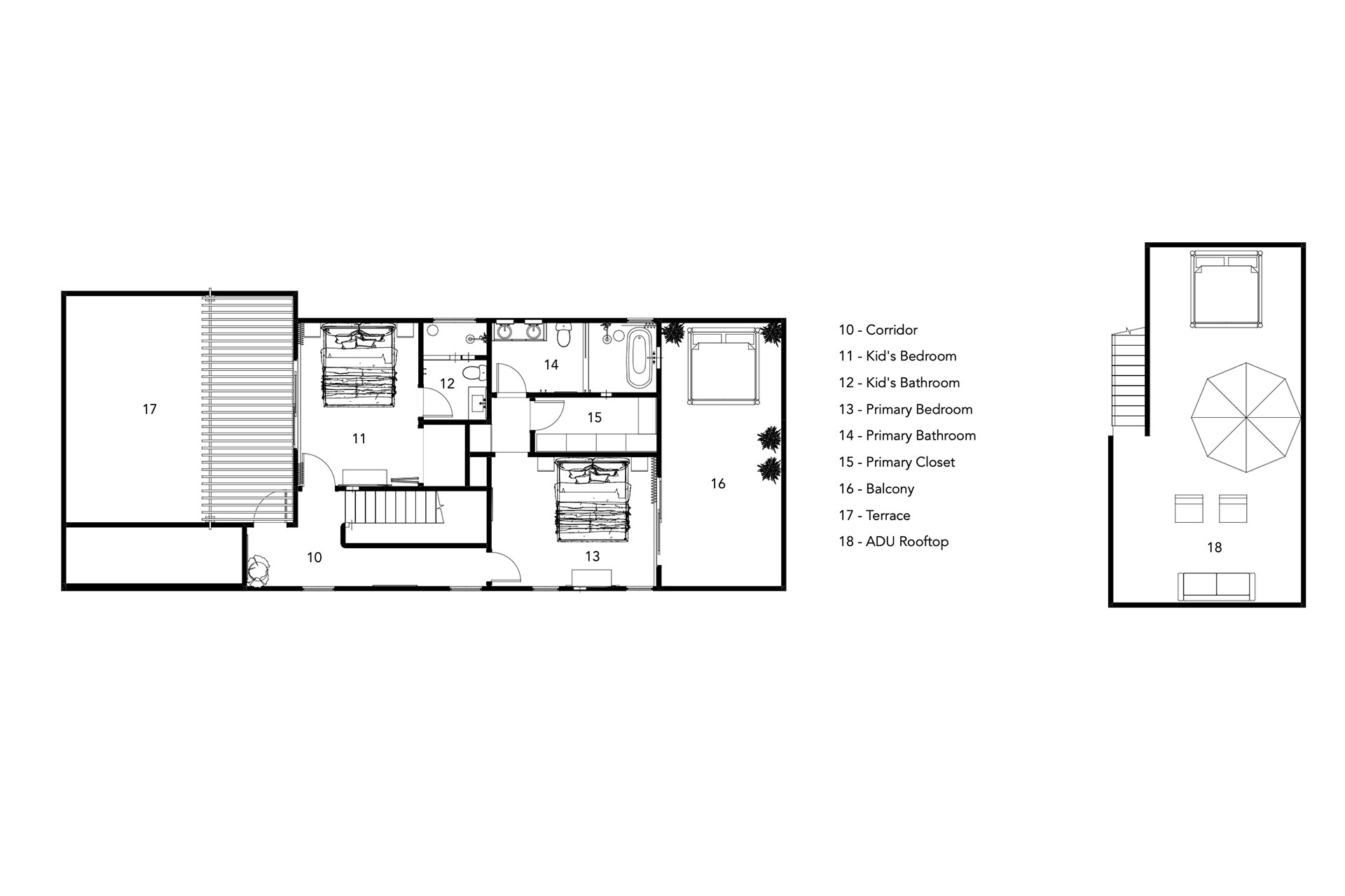
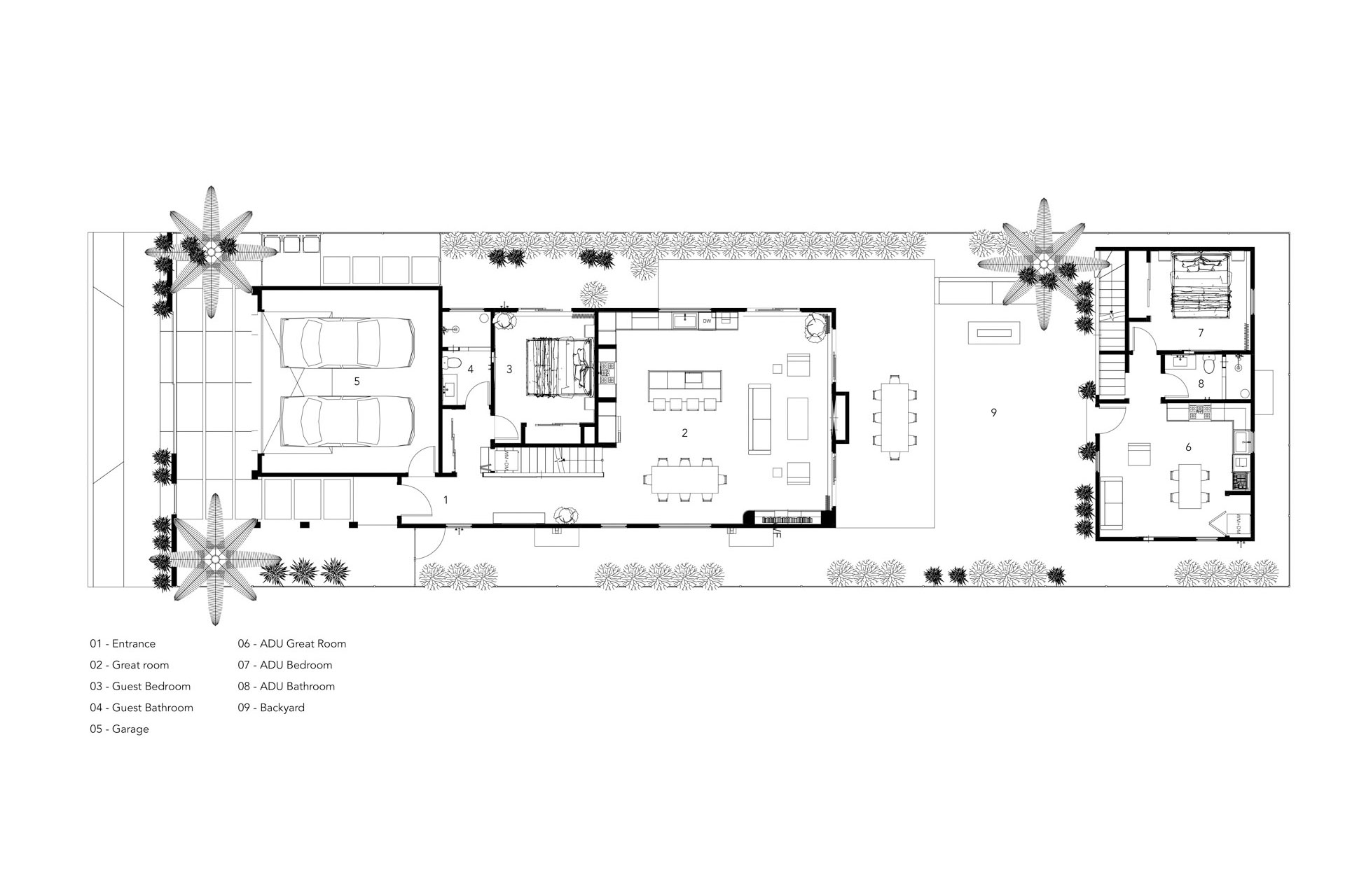
Welcome to this exciting project: a complete home renovation in the heart of West Hollywood, designed for a young family with a vision for organic modern living. Our goal was to create a harmonious blend of natural materials such as paint, cement, rock, and natural wood, ensuring a seamless transition from the exterior to the interior. The main house is complemented by a private guest house, connected through a serene backyard, offering guests all the comforts of home. This one-of-a-kind project incorporates elements of Wabi-Sabi style, celebrating the beauty of imperfection and creating a truly organic aesthetic. Experience the natural elegance and timeless design that define this unique home.


