As the sun sets over the horizon, casting a warm orange glow over the Malibu coastline, a sleek and modern guest house comes into view. It’s unlike anything you’ve ever seen before, with tall, black steel French doors that reach towards the sky and give off an air of sophistication and elegance. You can’t help but wonder what secrets lie behind those doors.
As you step inside, you’re immediately struck by the natural minimalism of the space. Every inch of the guest house is bathed in a warm, natural light that illuminates the beautifully crafted wooden floors and lime washed walls. The ambiance is serene and calming, making you feel instantly at ease.
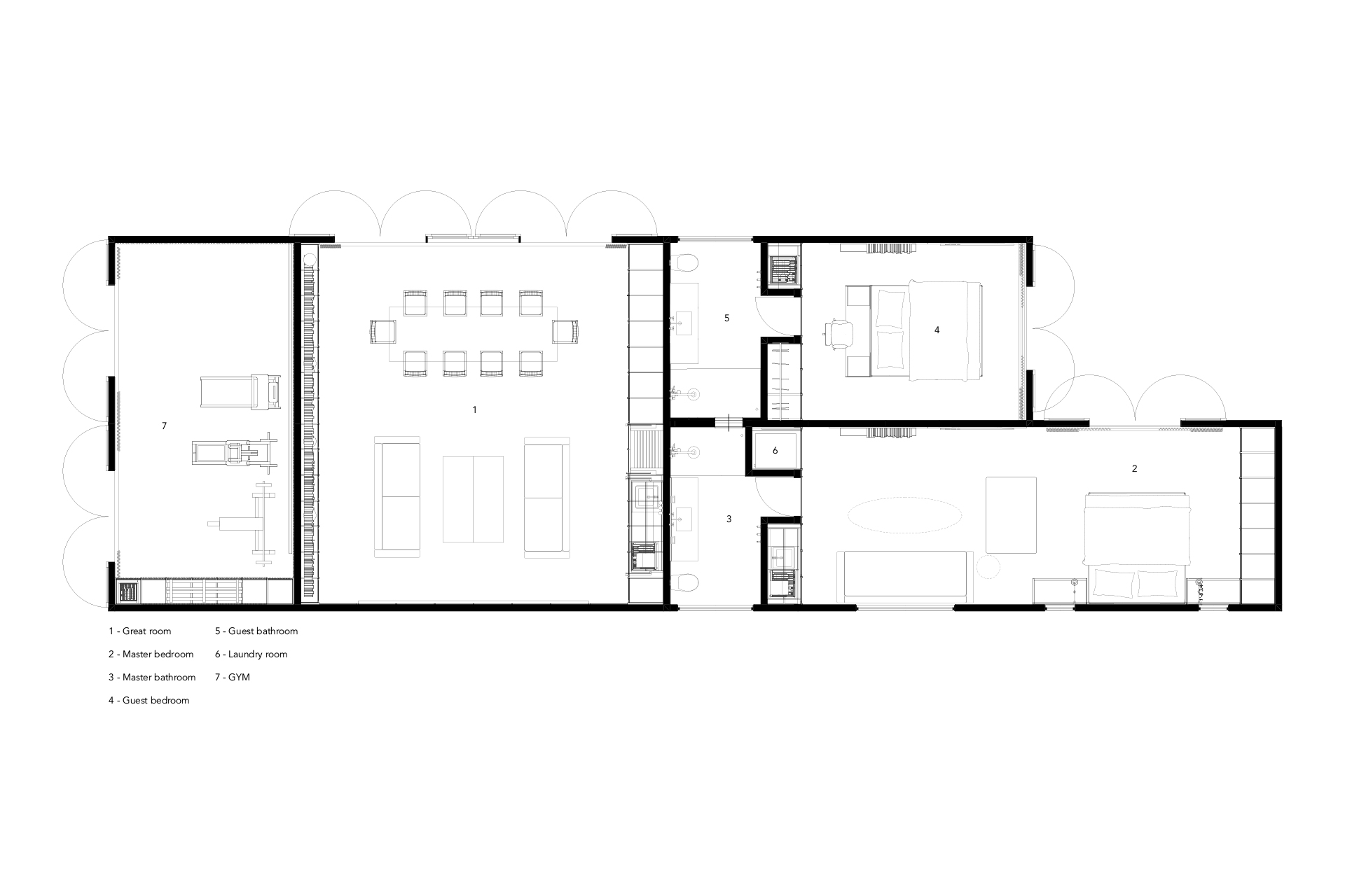
The guest house is divided into four zones, each with its own separate entrance to ensure complete privacy for guests: Great room, studio guest room, master guest bedroom, and GYM.
The AKARI 120 Japanese pendant light is a beautiful piece that can add a touch of elegance and sophistication to the space. Its size and shape can also help to create a focal point in the room, drawing attention to the center of the space.
The Elliptical Table ETR coffee table by Charles & Ray Eames is also a great choice, as its sleek and modern design can complement the overall aesthetic of the room. Its ergonomic design also makes it a functional and practical choice for a guest room, as it can be easily be pushed against the wall to be able to extend the sofa sleeper in case you guest has his own guest overnight.
Having a view straight from the bed is another great feature of the studio guest room. It helps create a sense of openness and airiness, and also provides a calming and relaxing atmosphere.


