
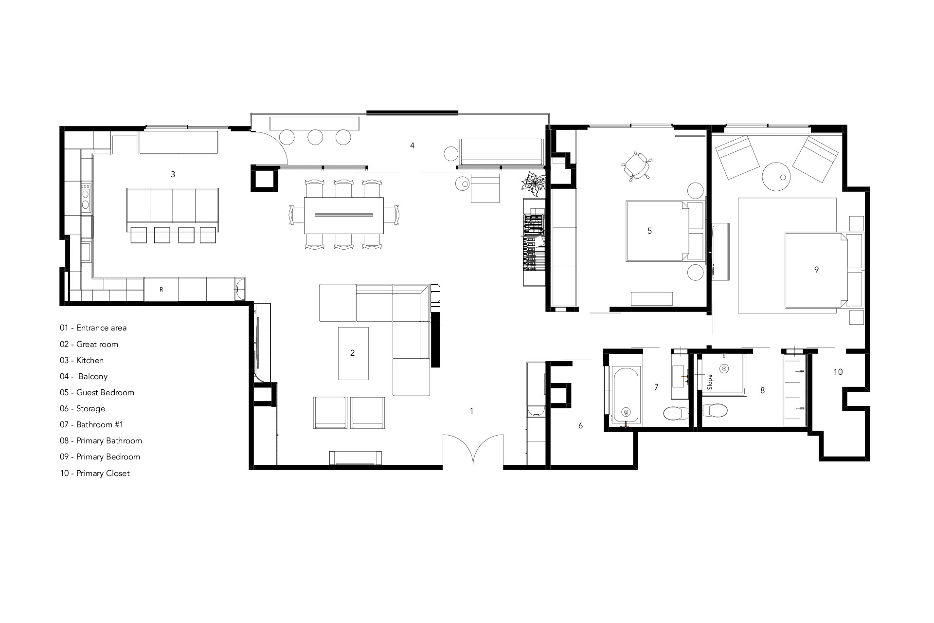
Welcome to “Beverly Hills Apartment,” our latest interior design project that epitomizes contemporary sophistication and serene living. This project seamlessly blends minimalist design with luxurious comfort, featuring clean lines, neutral palettes, and a thoughtful mix of textures. The living area boasts a striking textured accent wall, plush seating, and a luxurious black marble coffee table, all framed by subtle wooden dividers. In the kitchen, sleek cabinetry and modern appliances are paired with stylish pendant lighting and a functional central island. A cozy reading nook with a plush leather chair and natural greenery offers a perfect retreat, while the sophisticated wine bar, complete with a sleek fridge and ample storage, adds a touch of elegance. High-quality materials like natural stone, wood, and metal, along with varied textures and subtle metallic accents, ensure a dynamic yet cohesive look. “Beverly Hills Apartment” is a testament to the beauty of simplicity and thoughtful design, creating a living space that is both modern and timeless, perfect for any occasion.


