Bachelor Penthouse, Hollywood – Interior Designer Los Angeles

Bachelor Penthouse, Hollywood

Full Renovation
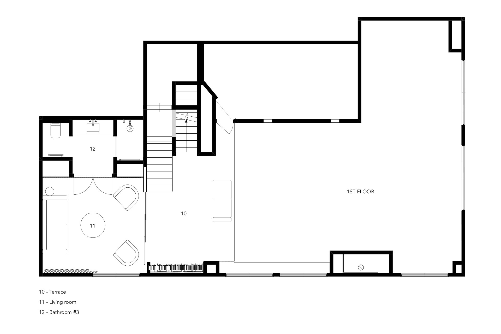
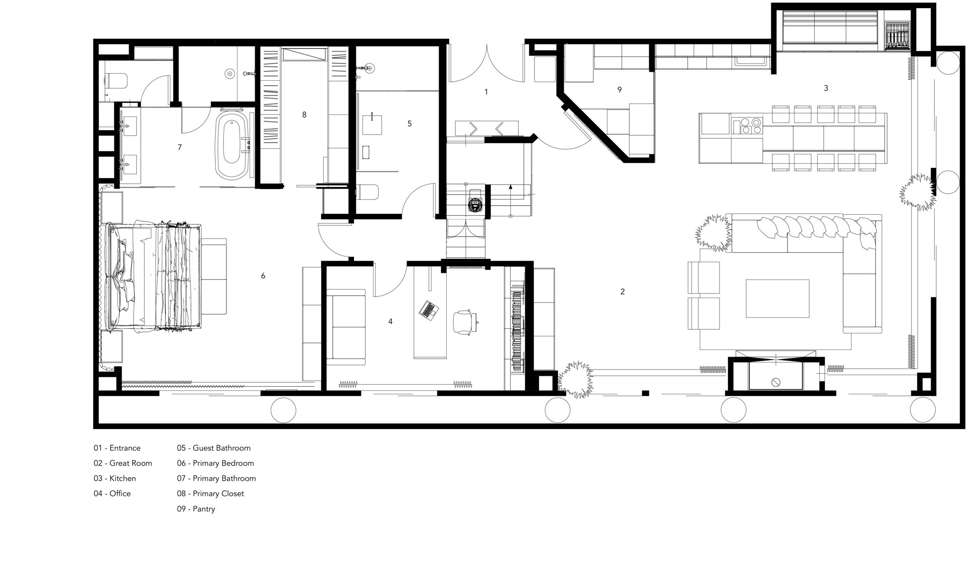
2 bedrooms
3 bathrooms
2,100 sq. ft.

This unique penthouse was tailor-made for a bachelor client who values enjoyment and expresses a refined taste in interior design. The apartment boasts numerous unique solutions and custom elements created specifically for this home. We incorporated dark elements into the interior to highlight the client’s distinctive personality, resulting in a striking and memorable atmosphere. The blend of unique materials and bespoke furniture creates a space with strong character and timeless elegance, making this apartment truly unforgettable.

Share the Project